Продажа офиса 99.9 м2
Поделиться:
Расположение:
Москва г., 2-й Силикатный проезд, 8
Рассрочка от застройщика
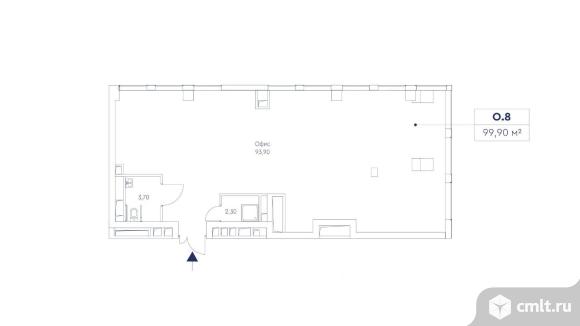
В проекте уже возведен монолит. Ведутся инженерные и фасадные работы. Продается офисное помещение класса «А» площадью 99,9 м2 в ультрасовременном комплексе бизнес-класса - ЭМОУШН от ГК ОСНОВА, расположенном в престижном районе Хорошёво-Мнёвники. Продажа от Застройщика. Помещение находится на 6 этаже 3 корпуса. Имеет удобную эргономичную прямоугольную планировку, которая обеспечивает максимальную эффективность пространства. В офисе предусмотрен отдельный санузел и помещение для уборочного инвентаря, что подчёркивает высокий уровень функциональности и комфорта. Характеристики - Продажа по ДДУ - Перспективная локация с высоким трафиком - помещение санузла, помещение уборочного инвентаря - высота потолков - 3 м - панорамное остекление - подземная парковка - современные системы вентиляции, кондиционирования, пожаротушения, дымоудаления, отвечающие всем нормам действующего законодательства. - 7 лифтов на этаже Комплекс ЭМОУШН располагается на территории Большого Сити - в масштабном проекте комплексного развития территории, который является одним из самых популярных бизнес-районов Москвы. О проекте - уникальная современная архитектура от бюро Камень - функциональный подземный паркинг и скоростные лифты - современные материалы и инженерные системы - панорамное остекление и высокая инсоляция - авторское благоустройство, амфитеатр, прогулочные зоны - панорамные виды на город и «Москва-Сити» - собственный СПА-комплекс с бассейном - рестораны, кафе и магазины Транспортная доступность - имеет быстрый выезд на Звенигородское шоссе - до метро «Звенигородская» всего в 5 минутах пешком, м. «Полежаевская» 15-20 минут пешком. - 10 минут до делового центра «Москва-Сити» - 10 минут до Садового кольца - 5 минут до ТТК - 600 м до речного транспорта. Электрический трамвай соединяет 18 столичных районов. Окружение го Сити является одним из самых востребованных бизнес-районов, где расположены офисы крупнейших компаний. Поблизости находится крупный деловой центр Москва-Сити, путь до которого займет всего 10 минут на автомобиле. Уусловия: Продажа по ДДУ. Покупка доступна в рассрочку от застройщика. Застройщик: ООО СЗ «СИЛИКАТДЕВЕЛОПМЕНТ». Проектная деклрация: наш.дом.рф. [#8100695#] 02.04.2026 04:45
Этот сайт защищён reCAPTCHA. Конфиденциальность и условия использования. Похожие объявления автора
|
||||||||||
