Торговое помещение 61.7 м2 в аренду
Поделиться:
Расположение:
Москва г., Ильменский проезд, 12
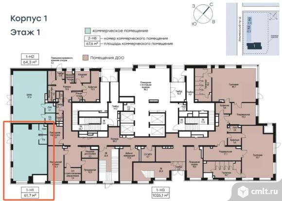
Сдается нежилое помещение площадью 61,7 кв.м., в густонаселенном районе, расположенное в жилом комплексе Level Селигерская по адресу: Москва, САО, Западное Дегунино, Ильменский проезд, вл. 12. Станция метро Селигерская расположена в 400м от ЖК. Огромный пешеходный и автомобильный трафик. Удобный выезд на Дмитровское шоссе, как в сторону центра города, так и в сторону МКАД. Быстрый выезд на северо-западную и северо-восточные хорды.
Помещение имеет угловое расположение с витринными окнами и отдельным входом. Свободная планировка, состояние - под отделку. Высота потолка 5,7м. Стоимость аренды за 1кв.м составляет 5 267,4 рублей. 325 000 за все помещение [#7650627#] 02.02.2026 04:39
Этот сайт защищён reCAPTCHA. Конфиденциальность и условия использования. Похожие объявления автора
|
||||||||||
