|
Объявление удалено автором.
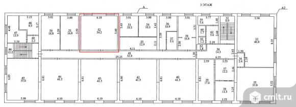
Дата последней публикации объявления 21.06.2025 — оно уже неактуально. Перейти к актуальным объявлениям автора. Перейти к актуальным объявлениям рубрики Офисы. Офис 34,2 кв. м. аренда на Дмитровском шоссе
Поделиться:
Расположение:
Московская обл., Мытищинский р-н, Грибки д., Складская улица, 5
Офис 34,2 м2 на Дмитровском шоссе аренда. Торгово-складской комплекс. Отдельностоящее здание, 3-й этаж. Состояние – заезжай и работай, типовой ремонт, окна, интернет, телефония, кондиционер, туалеты на этаже. Охраняемый вход, бесплатная парковка, бесплатный въезд на территорию. Рядом большой строительный рынок, жилой массив, магазины, предприятия общепита, остановки общественного транспорта, двухуровневая развязка Дмитровского шоссе, от МКАД 6 км. [#6884495#]
02.06.2025 04:48
Этот сайт защищён reCAPTCHA. Конфиденциальность и условия использования. |
||||||||||
